
关注公众号
每日get绝美乡墅案例

项目名称
福建漳州黄家欧式别墅
项目经理
苏志皇
图纸编号
1216
建筑面积
1100㎡
基地面积
1805㎡
占地面积
253.3㎡
建筑尺寸
17.6m×16.3m
建筑结构
框架结构
参考造价
209万元(不含室内装修费用)
项目概况

△总平面示意图
基地情况:
东:村内林地
西:村内林地
南:村内主干道
北:村内巷路

△项目场地
项目简介:
业主在前期对别墅的功能布置已经有了初步的构想,在与设计师初步沟通后,初步确定了布局。在了解到欧式建筑的大气优雅后,与设计师进行了沟通说明,希望盖一栋欧式别墅。
在各层的功能分布上,业主表示希望能有独立套间的大主卧和地下室,在基础功能之外兼具丰富的娱乐休闲功能。设计师根据场地限制和业主的需求和喜好将别墅确定为东南-西北走向的四层带地下欧式别墅。
平面布局
户型概况:
4层 + 地下室 / 5室 2厅 4卫 2厨 1堂屋 1衣帽 1洗衣 2储物 1棋牌室 1影音室 1起居室 1泡茶接待室 1活动室 1禅房 1酒窖 3阳台 1露台

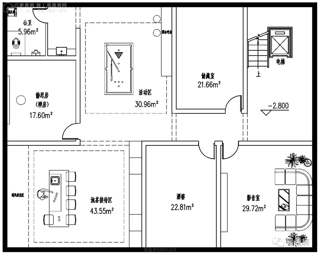
△地下室平面图(左下角为北)
地下室的功能定位是娱乐、储物,和接待访客。楼梯旁设置较大面积的储藏室,储物功能强大。西侧设置影音室,地下室创造良好的暗光环境。根据业主的喜好设置酒窖、禅房、活动区和可接待客人的茶室。别墅的功能得到极大的丰富。

△一层平面图(左下角为北)
建筑主体中,主入口位于别墅的西侧,入户的位置根据业主的要求参照中式建筑的设计设置堂屋,北侧客厅与餐厅相连两侧通透。餐厅与厨房相连,由于厨房面积宽裕,设置中岛台,极大提高了厨房的实用性,大面积的餐厅可容纳多人用餐。
考虑到长辈年迈,一层设置带私厕的长辈房。东侧是棋牌室和公卫。由于别墅层数较多,上下楼行动不便,除楼梯外还设置电梯。

△二层平面图(左下角为北)
二层空间主要是业主及家人的私人空间。根据业主需求二层设置单独套间主卧,内设单独的起居室,衣帽间卫生间呢,私密性和实用性极高,储物功能强大。另设一间带阳台的主卧,两间次卧,每个房间均有独立卫生间。

△三层平面图(左下角为北)
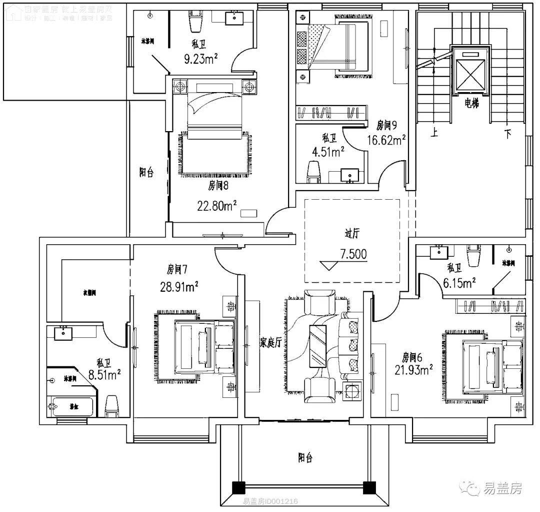
三层功能与二层相近,设置四间卧室。与二层不同的是,三层设置公用的起居室。北侧主卧有独立衣帽间,每个房间都有独立卫生间,提高了各房间的实用性和私密性。

△四层平面图(左下角为北)
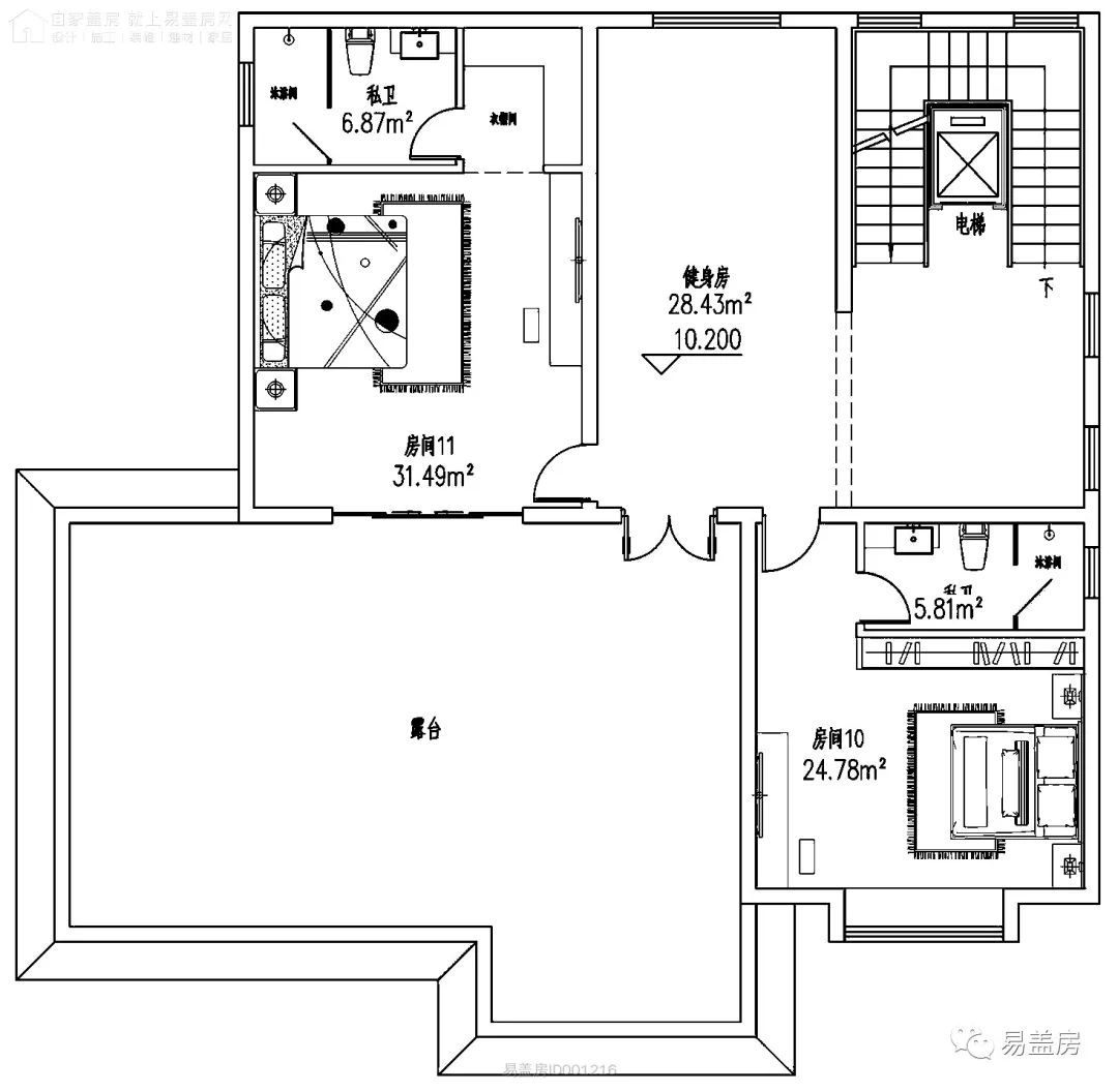
四层除两间带私卫的卧室外,根据业主需求设置健身房,北侧楼顶留出大面积露台。兼具实用和娱乐两重功能,方便衣物晾晒,也可供业主及家人室外活动,楼顶露台的私密性也极强。
造型设计

△西北侧效果图
建筑整体风格为欧式,立面主要选用暖色系材质,真石漆与石材的搭配,整体风格优雅大气。中间主体以米色墙面搭配深色屋顶饰以金色装饰,一层外墙采用同色系瓷砖,让造型设计更丰富有层次。

△西侧效果图

△西侧鸟瞰图
建筑的每个立面都做了大面积开窗,西北立面设计最有层次各层阳台的突出和露台的退让使立面层次丰富。立面各种材质的和色彩相搭配,但采用相同色系的颜色丰富而和谐。

△北侧效果图

△北侧鸟瞰图
除主体建筑外,西北侧和东南侧都留出大面积庭院,庭院的设计风格同样优雅大气,前后庭院都做了景观喷泉的设计,让院落的观赏性更强,通过设计将建筑和自然景色相搭配,精雕细琢而又不失自然。缀以鲜花绿植,精美大气的建筑,从整体营造出壮阔之感。

△东侧效果图

△东侧鸟瞰图
整体充分利用周围的绿植景观, 各立面的开窗,阳台和露台都能欣赏到建筑周围的景致。屋顶采用坡屋顶,整体造型豪华大气,富有浪漫的韵味。

△庭院效果图

△南侧鸟瞰图
东南侧庭院供业主汽车出入,采用防腐木地板和石砖搭配,与屋顶和墙面的颜色相呼应。

△庭院效果图

△庭院效果图
建筑西北侧庭院的景观喷泉采用了简欧风格设计,材质和颜色与建筑保持一致,与周围的植被相搭配,错落有致的院落给人扑面而来的大气感。

△西南侧立面图

△东北侧立面图

△西北侧立面图

△东南侧立面图









△扫码了解建材详情
扫描下方二维码
委派本案例主创建筑师:
杨洋(易盖房杨洋工作室)
为您定制专属生活空间

设计师问答
1.作为设计师,在这个项目中遇到了哪些困难?
答:业主虽然没有提供详细的参考资料,但是业主在前期已经有了成熟的布局构思。在与设计师融洽的沟通之后,将这些想法完整的呈现到最后的方案中。
2.这个项目的设计周期是多久?
答:24天。
3.是否有自己非常满意的设计建议未被业主接受?
答:没有,与业主沟通顺利。业主非常信任我们也积极考虑我们的建议,设计一步步确定下来,双方意见一致。

点个“在看”鼓励一下